Rivers & Walnut is currently designing a new build in Park City, Utah.
We work collaboratively with trusted contractors, architects and builders to create a custom design for your home from concept to finish.
We work closely with rendering companies to showcase our projects and give our clients a better understanding of structural components, furniture and decor.
Renderings can also give our clients the ability to market their home before building has even begun.






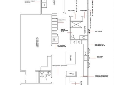
Rivers & Walnut is also currently designing a full restoration of an 1885 Farmhouse. Designing a restoration of a 138 year old home has been a huge undertaking. We love the challenge.
It is important we respect the era of each home we restore while bringing it up to date. Rivers & Walnut excels at working within the constraints of the house and reimagining spaces. Older homes take a lot of creativity and ingenuity to make them functional and beautiful and this is where we shine. Rivers & Walnut honors each home’s history and we strive to save historic architecture and original finishes where we can.
Restoration is not only about changing the home, it’s about respecting all the memories that lie within it.








































Check back for updates as the Park City home and farmhouse restoration are completed
or follow us @riversandwalnut on instagram
If you are interested in our interior design services and think we would be a good fit.
Contact us and we will be in touch.
Copyright © 2023 Rivers & Walnut - All Rights Reserved.
Powered by GoDaddy
We use cookies to analyze website traffic and optimize your website experience. By accepting our use of cookies, your data will be aggregated with all other user data.